VersaTube User Guide

VersaTube User Guide
Summit Garage 20 x 20 x 10

Design ID: 12011

Customer Name

50 Eastley Street
Collierville, TN 38017

Order Date: 10/10/2015

3D MODEL

Show Controls
Full Screen Mode
  • Show Foundation
  • Show Base Rails
  • Show Trusses
    • Side Post
    • Rafter
    • Peak
    • Truss Brace Kit
    • Height Extensions
    • Corner Angle Brackets
  • Show Eave Sides
    • Left Eave Side
    • Window Kits
    • Garage Door Kits
    • Walk Door Kits
    • Right Eave Side
    • Window Kits
    • Garage Door Kits
    • Walk Door Kits
  • Show Front / Back Enclosures
    • Front Enclosure
    • Main Frame
    • Girt Members
    • Walk Door Kits
    • Window Kits
    • Back Enclosure
    • Main Frame
    • Girt Members
    • Walk Door Kits
    • Window Kits
  • Show Hat Channel
    • Roof Hat Channel
    • Side Hat Channel
    • Rat Track Hat Channel
  • Show Sheet Metal
    • Roof Metal
    • Wall Metal
      • GableWall
      • Eave Wall
  • Show Trims
    • Ridge Cap
    • Gable Trim
    • Eave Trim
    • Corner Trim
    • J-Channel Trim
    • Angle Trim
    • Vinyl Trim
    • Transition Trim

Selected Part Name:

BUILDING TYPE

Summit

Summit
  • With Side Hat Channel (Girts)

    With Side Hat Channel (Girts)

  • With Roof Hat Channel (Purlins)

    With Roof Hat Channel (Purlins)

FRAME SPECS

Frame Specs

  • WIDTH

    24"


  • LENGTH

    20"

  • HEIGHT
    (SIDEWALL)

    8"

Left Lean-to

Left Lean-to

TYPE / WIDTH

Continuos / 8'

Right Lean-to

Right Lean-to

TYPE / WIDTH

Step-down / 7'

This structure is engineered to meet or exceed your local building code requirements of:

  • Ground Snow Load

    105lbs

    GROUND SNOW LOAD

  • Roof Snow (Live) Load

    85lbs

    ROOF SNOW (LIVE) LOAD

  • Wind Load

    90MPH

    WIND LOAD

* Source: IBC 2009 data for Collierville, Tennessee 38344 in Shelby County.


  • Roof Pitch

    ROOF
    PITCH

    3:12

  • On Center Spacing

    ON CENTER
    SPACING

    4'

  • Truss Brace Type

    TRUSS BRACE
    TYPE

    Type 3

  • Ground-to-truss clearance

    GROUND-TO-
    TRUSS CLEARANCE

    7'

  • Frame Weight

    FRAME
    WEIGHT

    1200 lbs

  • screws

    SCREWS IN RAFTER

    4

Steel Specifications

  • 2x3 14 Gauge


    FRAME

    2" x 3"

    14 Gauge Galvanized Tube

    Domestic Steel - 67% Recycled

  • 18 Gauge

    ROOF
    PURLINS

    18 Gauge Galvanized Roof Purlins

    3' On Center Spacing

  • 18 Gauge

    SIDEWALL
    GIRTS

    18 Gauge Galvanized Roof Purlins

    4' On Center Spacing

  • 15 Square

    FRONT/BACK
    WALL GIRTS

    1.5" Square 18 Gauge Galvanized Flush Mount Girts

    4' On Center Spacing

  • 2 Square

    FRONT/BACK
    WALL VERTICALS

    2" Square 15 Gauge Galvanized Front / Back Wall Verticals

SHEET METAL SPECS

29 Gauge Sheet Metal

29 Gauge Sheet Metal
  • RIB
    SPACING

    9"

    with 5 major ribs & minor ribs

  • RIB
    HEIGHT

    3/4"

    with 36" coverage

  •  
     

    Anti-siphon feature

  •  
     

    Durable, baked-on paint finish

Selected Sheet Metal & Trim

  • Roof Sheet Metal

    Roof Sheet Metal

    WHITE

  • Eave Trim

    Eave Trim

    WHITE

  • Gable Trim

    Gable Trim

    WHITE

  • Ridge Cap

    Ridge Cap

    WHITE

  • Side Sheet Metal

    Side Sheet Metal

    WHITE


  • Door Trim

    Door Trim

    WHITE

  • Corner Trim

    Corner Trim

    WHITE

  • J-Channel Trim

    J-Channel Trim

    WHITE

  • Inside Closure Strip

    Inside Closure Strip

  • Outside Closure Strip

    Outside Closure Strip

  • R-PANEL Inside Closure Strip

    R-PANEL Inside Closure Strip

  • R-PANEL Outside Closure Strip

    R-PANEL Outside Closure Strip


  • Transition Trim

    Transition Trim

    WHITE

SHEET METAL COLORS

Sheet Metal Colors
  • 1ROOF COLOR

    Green

  • 2WALL COLOR

    Stone

  • 3TRIM COLOR

    Green

Frame PARTS LIST

Main Frame

Main Frame / Lean-Tos

114 PARTS

PART COUNT INCHES OF MATERIAL WEIGHT USAGE ACTIONS

2x3-SBR-6-6

2 35" 105lbs
  • right: 1
  • left: 1

Framing screw

2 35" 105lbs
  • right-starterRail: 2
  • 3 x [ rightextRail: 2 ]
  • left-starterRail: 2
  • 3 x [ leftextRail: 2 ]
  • -sidePost: 60
  • -heightExt: 20
  • rafter: 40
  • trussBraceType2-BK60: 48
  • trussBraceType2-BK61: 48
  • trussBraceType2: 36
  • trussBraceType2-sglPurlBrack: 24
  • front-gableEncVert-bk20: 12
  • 2 x [ front-gableEncVert: 2 ]
  • 2 x [ front-enclosure: 4 ]

2x3-SBR-6-6

2 35" 105lbs
  • right: 1
  • left: 1

2x3-SBR-6-6

2 35" 105lbs
  • right: 1
  • left: 1
Sidewalls

Endwalls

36 PARTS

Front Enclosure

This is front enclosure block

Back Enclosure

This is back enclosure block

Truss Brace

Truss Brace

28 PARTS

Accessories

Accessories

114 PARTS

 

Sheet Metal/Trim Parts List

Sheet Metal

Sheet Metal

114 PARTS

 

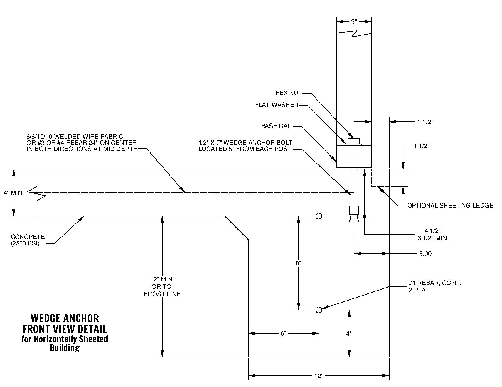
FOUNDATION REQUIREMENTS

Foundation

 

General foundation notes:

  • 1

    Maximum allowable soil bearing pressure is 1000psf in accordance with Applicable code. Owner to verify that soil is stable and compacted to a Minimum of 95% relative optimum value.

  • 2

    Maximum size concrete aggregate shall be 1” dia.

  • 3

    Minimum compressive strength of concrete at 28 days shall be 2500 psi.

  • 4

    Place reinforcement at mid depth for slabs on grade.

  • 5

    All splices in continuous reinforcement or reinforcing shall have a minimum lap of 40 diameters. Splices in adjacent bars shall not be less than 4’-0” apart. Vertical wall bars shall be spliced at or near floor lines. Bars may be wired together at splices or laps except for top reinf. Of beam and slabs, or where specifically detailed to be separated.

  • 6

    Concrete shall be placed in accordance with the latest aci specifications.

  • This is strictly a suggested foundation design. Other engineered designs may be substituted or dictated by your municipality or inspector.

Installation: Using Hammer drill and a 1/2" concrete drill bit, drill a hole into the concrete 5" to 5 1/2" deep. Place the flat washer on the bolt and install the nut until about 2 threads are exposed above the nut. Tap the anchor through the base rail into the hole until the washer touches the top of the base rail. Now, tighten the nut to set the anchor. Do not over tighten and crush the tube.

Foundation

This is strictly a suggested foundation design. Other engineered designs may be substituted or dictated by your municipality or inspector.

TRUSS ASSEMBLY

FRONT ENCLOSURE ASSEMBLY

Front Enclosure

 

Legend:

    • 1

      2x3-EBR-6-6

    • 2

      2x3-EBR-6-6

    • 3

      2x3-EBR-6-6

    • 4

      2x3-EBR-6-6

    • 5

      2x3-EBR-6-6

    • 6

      2x3-EBR-6-6

    • 7

      2x3-EBR-6-6

    • 8

      2x3-EBR-6-6

    • 9

      2x3-EBR-6-6

    • 10

      2x3-EBR-6-6

    • 11

      2x3-EBR-6-6

    • 12

      2x3-EBR-6-6

BACK ENCLOSURE ASSEMBLY

Blueprint

EAVE SIDE(Left Side) ASSEMBLY

Blueprint

EAVE SIDE(Right Side) ASSEMBLY

Blueprint

LEFT LEAN-TO ASSEMBLY

Blueprint

RIGHT LEAN-TO ASSEMBLY

Blueprint

HAT CHANNEL ASSEMBLY

RAT TRACK ASSEMBLY

SHEET METAL PANELS

 

WARRANTY DETAILS

20 Year Frame Warranty
25 Years Sheet Metal Warranty

 


 

The VersaTube Product Pledge

Pledge is our way of showing that we’re proud of our products and the level of quality that they represent. Your building will go through an extensive inspection process prior to leaving our plant, but if any component should not meet your expectations, we’ll be glad to replace the part at no charge within 30 days of purchase.

The only criteria that must be met is that you bought the building from VersaTube, the damage wasn’t caused by customer modifications or mishandling, and that the building was erected within 30 days of purchase.

The second part of the VersaTube Product Pledge provides a 20 year structural warranty on all framing components of our buildings from the date of purchase. Of course, the defect can’t be caused by customer modifications or negligence, an unanticipated Act of God or nature, an accident, or any type of internal or external impact. Improper assembly or installation may also void the warranty.

The customer is responsible for performing standard building maintenance and inspections on a regular basis. We reserve the right to repair or replace any part that might not meet expectations.

VersaTube is proud to put our name on the buildings we manufacture for our customers and stand behind their quality with our industry leading Product Pledge.

TERMS & CONDITIONS

Instruction

SUPPORT